三色路 6号线金石路跌口 精装现房 396平方 6隔间36工位 动静分区 24小时空调自控 含家具可调 中鼎国际办公室出租
¥27680/月
396m²
工位36
¥27680/月
2.33/m²/天
金石路
步行两分半
微信扫码手机查看房源详情
所在地区锦江区
附近地铁距离地铁6号线金石路223米
动静分区
地铁口
新希望中鼎国际 2栋
基础信息
楼盘名称
新希望中鼎国际
办公室等级
甲写
免租期
面谈
起租期
12
楼层
中层
工位数
36
采光
单面采光
物业费
7元
付款方式
押二付三
入驻时间
随时入住
地铁交通
距离地铁6号线金石路223米
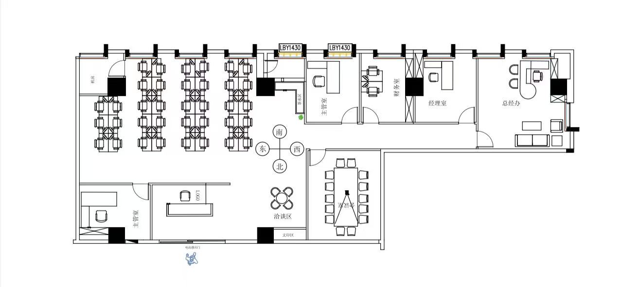
房源介绍
楼盘:新希望中鼎国际
位置:6号线金石路地铁口
介绍:该户型服务面积396平,户型方正,6隔间36工位,价格含物业费,拎包入住户型,无加时费
地理位置
相关问答
新希望中鼎国际现在有办公室出租吗?
佚名 | 2021-08-01 | 来自:成都 | 共1条回答
新希望中鼎国际是公寓还是写字楼呢?
佚名 | 2021-07-18 | 来自:成都 | 共1条回答
新希望中鼎国际写字楼周边有地铁吗,上班方便不?
佚名 | 2021-06-20 | 来自:成都 | 共1条回答
新希望中鼎国际写字楼的物业费是多少呢
佚名 | 2021-06-13 | 来自:成都 | 共1条回答
新希望中鼎国际写字楼品质怎么样呢?
佚名 | 2021-05-09 | 来自:成都 | 共1条回答
新希望中鼎国际一般租金是多少呢
佚名 | 2021-04-18 | 来自:成都 | 共1条回答
更多优质房源



在线客服