武侯区红牌楼甲级现房 264平方 4隔间12工位 东南朝向 户型方正 带前台 拎包入住 鼎冠中心办公室出租
¥18278/月
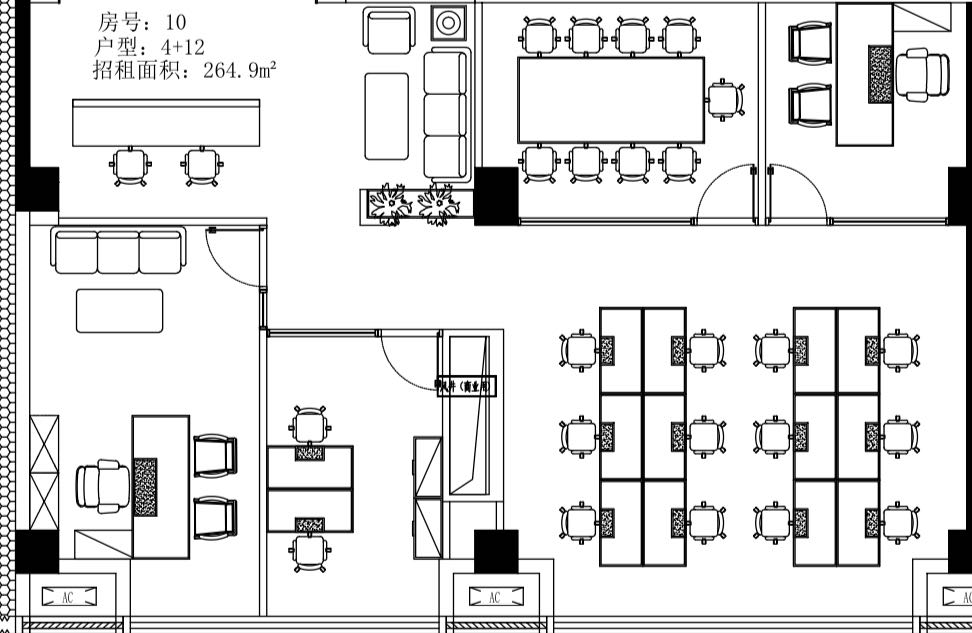
264.9m²
工位12
¥18278/月
2.30/m²/天
微信扫码手机查看房源详情
所在地区武侯区
24小时空调
近地铁
鼎冠中心 1栋
基础信息
楼盘名称
鼎冠中心
办公室等级
甲写
免租期
面谈
起租期
24
楼层
中层
工位数
12
采光
单面采光
物业费
15元
付款方式
押二付三
入驻时间
随时入住
地铁交通
房源介绍
楼盘:鼎冠中心
位置:红牌楼地铁D口三四百米
介绍:该户型面积264.9平方米,带4隔间12工位 户型方正 通透大气 24小时空调无加时费 交付校准:拎包入住 家具可调换
地理位置
相关问答
暂无相关问答~
更多优质房源



在线客服