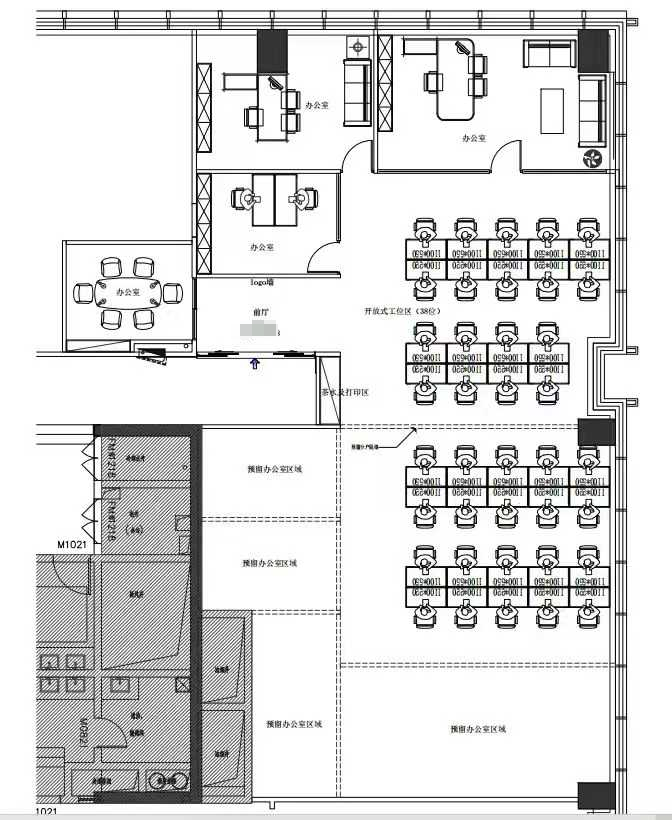
成华理工大学地铁口 481平方 8隔间38工位 精装带家具 无加时费 视野巴适 招商城市主场办公室出租
¥37950/月
481m²
工位38
¥37950/月
2.63/m²/天
理工大学站
不行4分钟
微信扫码手机查看房源详情
所在地区成华区
附近地铁距离地铁7号线理工大学392米
双地铁口
无加时费
含物业费
招商中央华城 A座
基础信息
楼盘名称
招商中央华城
办公室等级
甲写
免租期
面谈
起租期
24
楼层
高层
工位数
38
采光
双面采光,视野好
物业费
4元
付款方式
押二付三
入驻时间
随时入住
地铁交通
距离地铁7号线理工大学392米
房源介绍
楼盘:招商中央华城
位置:7号线8号线理工大地铁口,核心位置,交通方便
介绍:招商中央华城甲级超高区户型,地铁口无缝衔接,服务面积481平方 8隔间38工位,无加时费,双地铁口交通方便,精装带家具,拎包入住,全成都房源均有
地理位置
相关问答
招商中央华城这里有加时费吗?
佚名 | 2021-10-12 | 来自:成都 | 共1条回答
招商中央华城位置是在哪里呢?
佚名 | 2021-10-10 | 来自:成都 | 共1条回答
招商中央华城附近配套怎么样呢,有超市和美食吗?
佚名 | 2021-10-04 | 来自:成都 | 共1条回答
招商中央华城这里有办公室出租吗?
佚名 | 2021-10-03 | 来自:成都 | 共1条回答
招商中央华城写字楼离地铁远吗?
佚名 | 2021-10-02 | 来自:成都 | 共1条回答
招商中央华城写字楼这边点外卖方便吗?
佚名 | 2021-10-02 | 来自:成都 | 共1条回答
招商中央华城这里的办公楼是平层还是跃层呢?
佚名 | 2021-10-02 | 来自:成都 | 共1条回答
招商中央华城写字楼是什么品质的呢?
佚名 | 2021-10-01 | 来自:成都 | 共1条回答
招商中央华城写字楼电梯分高中低区吗?
佚名 | 2021-10-01 | 来自:成都 | 共1条回答
招商中央华城可以用来注册公司吗?
佚名 | 2021-10-01 | 来自:成都 | 共1条回答
更多优质房源



在线客服